Casa T

Taling Chan, Bangkok
2021 — 2024

 
 
  • In Casa T, duality is intentional.

    Exploring the intersection of art and home, the project reimagines what it means to work and live as a tattoo artist. While these two worlds may appear naturally intertwined, the architecture draws a clear yet quiet line—honouring the precision of craft and the tenderness of domestic life, brought together beneath one roof.

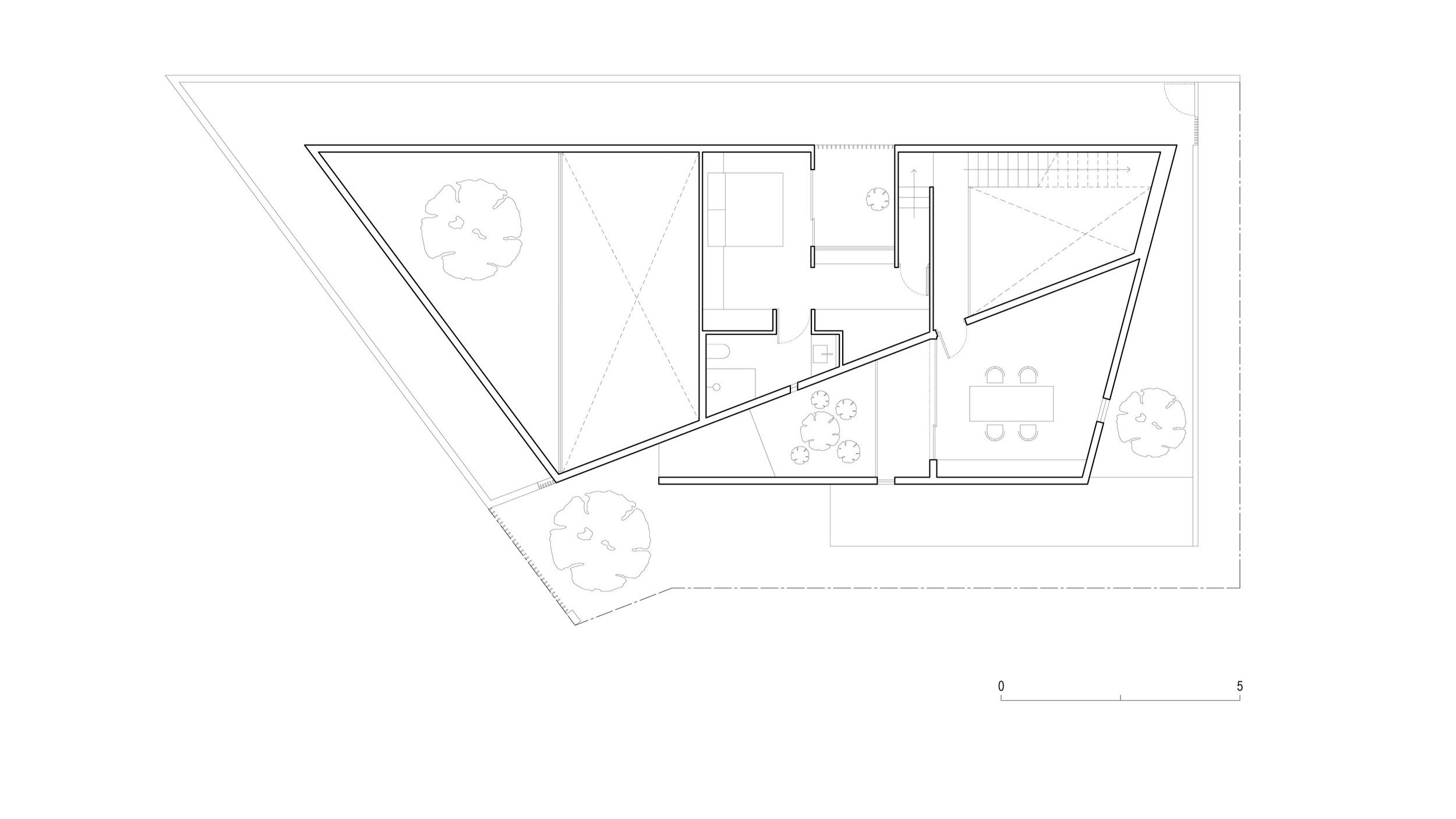
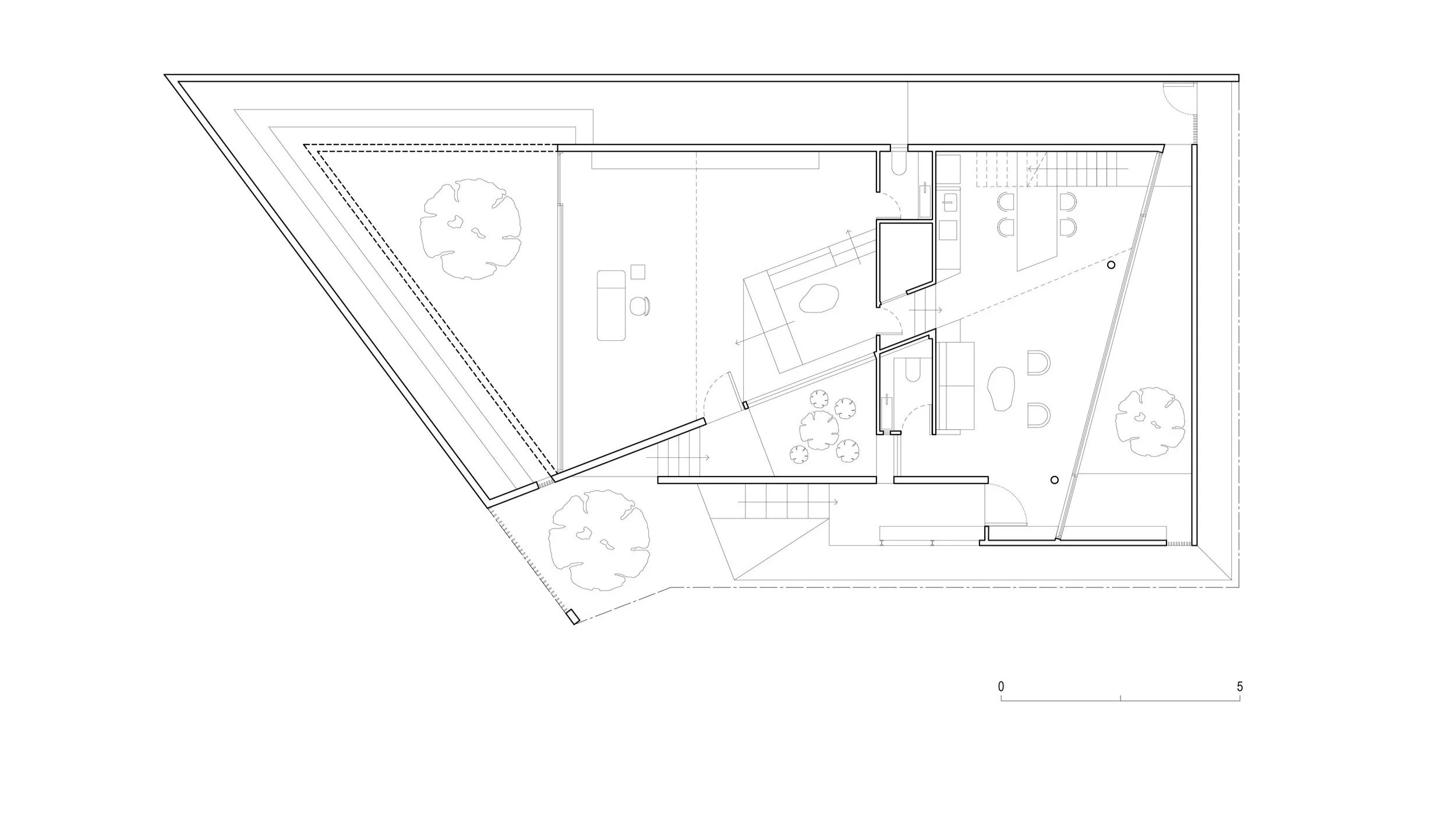
    Set on a trapezoidal site within a medium-density suburb of western Bangkok, the building turns its angular face toward a busy main road, shielding its inner life behind minimalist surfaces. Within this sculptural shell, Casa T unfolds as both a working atelier and a private residence. Designed in close collaboration with its owner—a tattoo artist renowned for his meticulous craft—the project aims to not only function but also raise the bar of the craft and redefine the tattoo experience. The atelier is envisioned less as a place for procedure and more as a sanctuary for self-expression, personal narrative, and creativity.

    The architectural language draws directly from the art of tattoo. Sharpness and precision—echoing the movement of the needle—manifest in clean lines and defined angular edges. The monolithic mass of the architecture shapes a new identity within the streetscape and offers a sense of privacy, while selectively opening towards internal courtyards. 

    Casa T presents two distinct spatial experiences—an introspective working atelier and a warm family residence.  Conceived to feel both private and elevated, the atelier conveys a sense of exclusivity, ritual, and mystery. Moreover, the atelier embraces light and shadow interplay with a biophilic approach, departing from the typical tropes of dark, enclosed tattoo parlours. Through a concealed entrance to the atelier, visitors are greeted by a dramatic double-height volume that serves as a spatial centerpiece. This verticality draws the eye upwards and is thoughtfully connected to an internal courtyard. These gestures invite natural light and greenery into the composition, tempering the strict interior with touches of delicacy and life. A selection of dark, inky tones across various materials is intentionally curated to pay homage to the artist’s medium.

    In contrast, the residence—accessed through a separate entrance—unfolds with softness and repose. Warm materials, light tones, and filtered daylight not only slow the rhythm, but also relax the geometry of the space, allowing for rest and reflection. Everyday functions are arranged over two floors, oriented towards secondary private courtyards. Reserved for family and quiet moments, the space gives the artist a measured separation from work and a place to ignite his creativity. 

    This juxtaposition is deliberate. The divide between the professional and the personal is not a wall but a threshold—a place where artistry and private life coexist. As an offering of balance, Casa T tells a story that is at once architectural and emotional: a portrait of a life etched in ink, light, and space.

    Architect: SSAA
    Interior Designer: SSAA
    Landscape Designer: SSAA
    Structural Engineer: Keystone Consultants
    Main Contractor: PCM Built
    Landscape Contractor: Plibai Garden
    Photographer: Chakkraphob Sermphasit (AACS)